Trilocale in vendita

Seveso, Via Cacciatori delle Alpi - Altopiano
€ 119.000
3 locali 3 locali
80 Mq 80 Mq
1 bagno 1 bagno

Trilocale in vendita

Seveso, Via Cacciatori delle Alpi - Altopiano

Descrizione annuncio

SEVESO ALTOPIANO

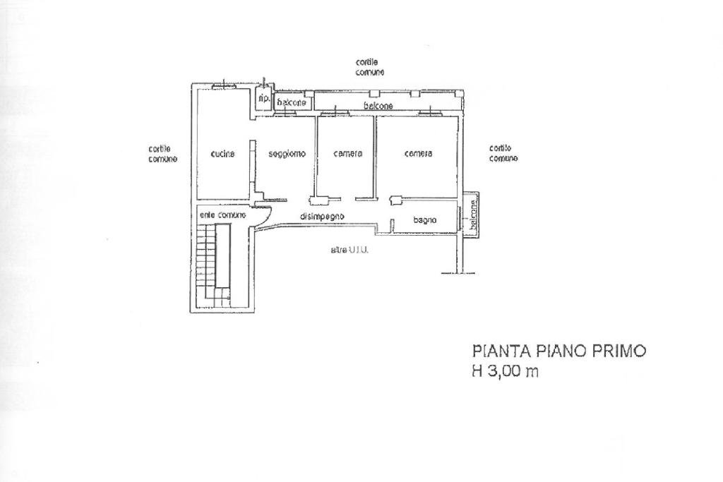
Proponiamo in vendita un trilocale situato a Seveso, nella tranquilla zona Altopiano, posto al primo piano di una mini palazzina composta da circa 4/5 unità abitative, ideale per chi cerca un contesto sereno e a basso mantenimento.

L’appartamento è composto da un soggiorno luminoso con spazi ben distribuiti, cucinotto separato, due camere da letto di cui una con accesso diretto al balcone,bagno finestrato con vasca e un comodo ripostiglio.

La soluzione non dispone di box o posto auto di proprietà, ma vi è la possibilità di usufruire di spazi per il parcheggio.

Ulteriore punto di forza dell’immobile è l’assenza di spese condominiali, caratteristica che lo rende ideale per chi desidera contenere i costi di gestione.

Mostra tutto

Nelle vicinanze

Trasporto pubblico Trasporto pubblico
Seveso
Seveso
1,1 Km
Cesano Maderno
Cesano Maderno
2,2 Km
Seveso - Via Cacciatori delle Alpi fr. Via Archimede - Linea Z163
Seveso - Via Cacciatori delle Alpi fr. Via Archimede - Linea Z163
520 m
Seveso - Via Cacciatori delle Alpi fr. 46 / 48 - Linea Z163
Seveso - Via Cacciatori delle Alpi fr. 46 / 48 - Linea Z163
630 m
Cesano Maderno Groane
Cesano Maderno Groane
1,9 Km
Ricariche auto elettriche Ricariche auto elettriche
Bricch Golf
400 m
Iperal Barlassina
790 m
Scuole Scuole
Scuola Primaria Bruno Munari
430 m
Scuola primaria "Carlo Collodi"
1,4 Km
Istituto Professionale di Stato Lorenzo Milani
1,4 Km
Scuola secondaria di primo grado Leonardo Da Vinci e Istituto Professionale di Stato L. Milani - Sede di Seveso
1,4 Km
Scuola Primaria Alessandro Manzoni
1,5 Km
Farmacia Farmacia
Farmacia Dott.sse Varda
610 m
Farmacia Centrale
1,1 Km
Farmacia San Pietro
1,4 Km
Villaggio 2
1,5 Km
Farmacia
1,8 Km
Supermercati Supermercati
Famila
640 m
Iperal Barlassina
760 m
MD Market
1,1 Km
Crai
1,3 Km
Di per Dì
1,4 Km
Negozi Negozi
Piemonti baby
620 m
Pan Brio
1,1 Km
Corrado Tessuti
1,1 Km
Il Forno
1,3 Km
I piaceri del pane
1,4 Km
Bar Bar
Caffè Manzoni
1,0 Km
Bar Madonna
1,1 Km
Bar Rivoli
1,1 Km
Bar 13
1,2 Km
Caffetteria Gelateria Pogliani
1,3 Km
Ristoranti Ristoranti
La Sprelunga
200 m
Altamarea Pizzera Ristorante
600 m
La pagoda
930 m
Pizzeria del Corso
970 m
Dal Dom
970 m
Mostra tutto

Caratteristiche

Rif.:
61142093
Piano:
1 di 3 (Piano ammezzato)
Balconi:
2
Camere da letto:
2
Arredamento:
Assente
Condizionamento:
Assente
Mostra tutto
Prezzo Prezzo
€ 119.000
Rata mutuo Rata mutuo
€ 562 / mese
Spese annue Spese annue
€ 0
Proponi il tuo prezzoProponi il tuo prezzo

Classe Energetica

E
E
E
E
E
E
E
E
E
EP globale non rinnovabile:
140.43 kW h/m² anno
EP globale rinnovabile:
65.44 kW h/m² anno
EP invernale del fabbricato:
EP estiva del fabbricato:
Anno di costruzione:
1967
Riscaldamento:
Autonomo
Tipo impianto:
A radiatori
Tipo alimentazione:
Metano

Ti interessa visionare l'immobile?

Fissa un appuntamento  Fissa un appuntamento

Richiedi informazioni

Clicca su Leggi per aprire l'informativa
* Questi campi sono obbligatori

Calcola il tuo mutuo

Semplice e senza impegno
Anticipo

( % )
Mutuo

( % )

pochi semplici passi

inserisci i tuoi dati
Questionario completato
Grazie per aver richiesto un appuntamento senza impegno con un nostro Consulente del Credito e Assicurativo.

Hai inserito correttamente tutti i dati necessari e a breve riceverai una e-mail con un link da convalidare per inviare i tuoi dati.
Affiliato
Studio Barlassina Sas
Via Garibaldi, 74 20823 Lentate Sul Seveso (MB)

Il nostro staff


  • Gabriella Porto
    Affiliata

  • Carola Mireia Frasi
    Coordinatrice

  • Manuel Pagani
    Collaboratore

  • Federico Ponticello
    Collaboratore
Via Garibaldi, 74 20823 Lentate Sul Seveso (MB)
Zona: Lentate sul Seveso
Mostra su mappa
Orari: Dal Lunedì al Venerdì: 09.00/12.30 - 15.00/19.30; Sabato: 09.00/15.30
Affiliato
Studio Barlassina Sas
Via Garibaldi, 74 20823 Lentate Sul Seveso (MB)

2025 Tecnocasa Franchising S.p.A. - P. IVA 08365160152 - Via Monte Bianco 60/A 20089 Rozzano (MI). Ogni agenzia ha un proprio titolare ed è autonoma. Privacy policy | Policy utilizzo | Cookie policy